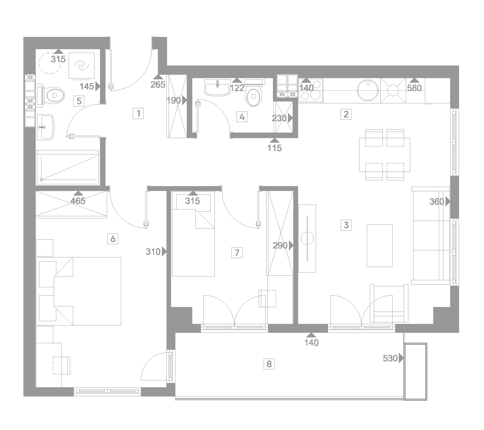
Стан бр. 3.19

  • Влезен хол 5.88 m²
  • Кујна 5.08 m²
  • Дневен престој 18.48 m²
  • Тоалет 2.55 m²
  • Бања 4.56 m²
  • Спална соба 14.26 m²
  • Спална соба 8.81 m²
  • Тераса 6.63 m²
  • вкупна квадратура 66.25 m²
Резервирај термин

    ЗАИНТЕРЕСИРАНИ СТЕ?

    СЛОБОДНО СТАПЕТЕ

    ВО КОНТАКТ СО НАС!

    ЗА НАС

    ГП Пелистер е компанија изградена врз доверба, искуство и посветеност. Работиме на различни типови градежни проекти, со јасна цел – да испорачаме стабилни, функционални и долготрајни решенија.

    Адреса:

    Добривое Радосављевиќ бр.3 7000 Битола Македонија

    Антон Попов бр. 5
    1000 Скопје Македонија

    Телефон:
    071 207 000
    Е-маил:
    bojan@gppelister.com.mk

    КОНТАКТ

    Бојан Стерјев

    Агент за продажба

    ПОБАРАЈ ПОНУДА

      Сите права се задржани – Гп пелистер