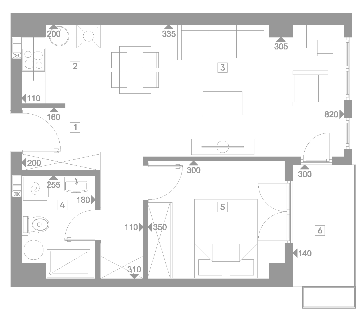
Стан бр. 4.29

  • Влезен хол 3.16 m²
  • Кујна 3.90 m²
  • Дневен престој 23.85 m²
  • Бања 4.34 m²
  • Спална соба 10.2 m²
  • Тераса 3.71 m²
  • вкупна квадратура 49.16 m²
Резервирај термин

    ЗАИНТЕРЕСИРАНИ СТЕ?

    СЛОБОДНО СТАПЕТЕ

    ВО КОНТАКТ СО НАС!

    ЗА НАС

    ГП Пелистер е компанија изградена врз доверба, искуство и посветеност. Работиме на различни типови градежни проекти, со јасна цел – да испорачаме стабилни, функционални и долготрајни решенија.

    Адреса:

    Добривое Радосављевиќ бр.3 7000 Битола Македонија

    Антон Попов бр. 5
    1000 Скопје Македонија

    Телефон:
    071 207 000
    Е-маил:
    bojan@gppelister.com.mk

    КОНТАКТ

    Бојан Стерјев

    Агент за продажба

    ПОБАРАЈ ПОНУДА

      Сите права се задржани – Гп пелистер